COMERCIALIZA:

PROMUEVE Y CONSTRUYE:

Promoción vendida al 100%.

Situada en el barrio Elizmendi, en Asteasu, esta promoción está en un emplazamiento tranquilo en el que disfrutar de la paz que brinda la naturaleza.

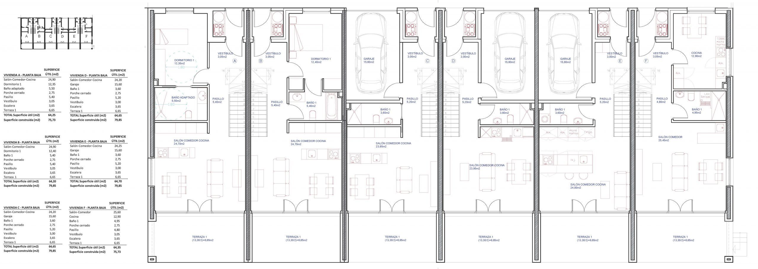
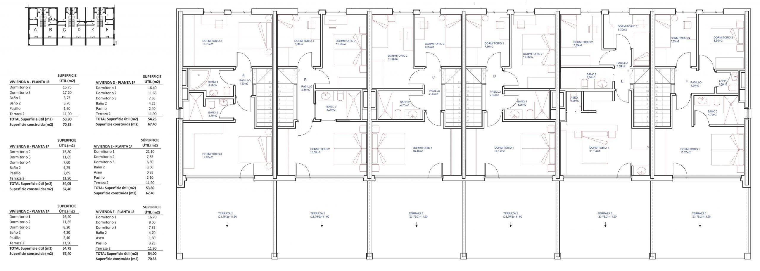
La promoción consta de 6 villas adosadas «SmartHome» de alta eficiencia energética de 2 y 3 habitaciones con amplias terrazas en la fachada principal. Cada vivienda con acceso directo a garaje opcional propios en la planta de acceso.

PLANTA BAJA

PLANTA PRIMERA

Construye y comercializa: Zumarpe®

Más de 20 años de experiencia trabajando en el sector inmobiliario y en el sector de la construcción.

Somos una empresa multidisciplinar que ofrece un amplio abanico de servicios.

Contamos con un equipo técnico de arquitectos, arquitectos técnicos e ingenieros que trabaja de manera conjunta con los gremios, todos ellos en plantilla.